Este proyecto consistió en la remodelación interior de un antiguo apartamento ubicado en el barrio de Gracia en Barcelona, España.

El proyecto se enfoca en una única estrategia, abrir el piso longitudinalmente. Este se concentra en un solo gesto, lograr conectar visualmente la calle y el patio interior, uniendo las fachadas opuestas y, hasta ahora, distantes.
Se ha utilizado madera natural por su bajo precio y por ser estético y combinar excelentemente con el blanco. Así, lograr mayor luminosidad.


Un nuevo armario cruza toda la casa de un extremo a otro. Los responsables de este proyecto, los arquitectos Irene Pérez y Jaume Mayol, lograron crear espacios funcionales y acogedores en este piso de 65 M2.
Anteriormente, había un piso de baldosas de arcilla de 13×13 cm colocadas en diagonal. Su estado no era muy bueno: se había modificado parcialmente, había muchas parches y diferentes tipos de baldosas, resultado de alteraciones y modificaciones superpuestas. Por lo tanto, se decidió reemplazar el psio por uno nuevo. Se eligió un piso hidráulico fabricado por Huguet.



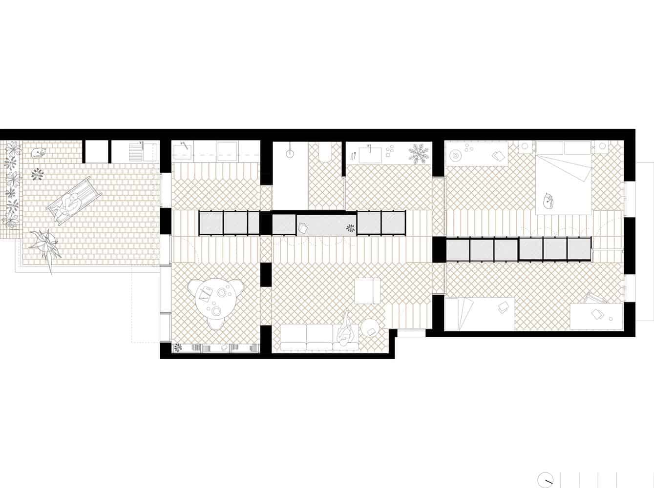
Aquí los planos para apreciar la distribución:


El estudio de arquitectura TEd’A Arquitectes fue contratado para llevar a cabo este proyecto.