Proyecto Casa moderna de bambú : Casa en Rotselaar
Arquitectos Casa moderna de bambú : AST 77
Ubicación Casa moderna de bambú : Rotselar, Bélgica
FotografíaCasa moderna de bambú : Steven Massat
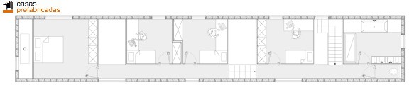
Esta construida en un sitio boscoso con medidas únicas y curiosas que hacen de esta casa algo parecido a un mini edificio.
El elemento de bambú es solo revestimiento ya que toda su estructúra base es acero, esto se usó con el objetivo de hacer un ambiente exterior mas agradable.
Con las ventanas situadas de esta manera se busca obtener una fuerte iluminación solar ya que como ven, es una tierra en donde hace mucho frio por las nevadas constantes.


















