Esta es la Casa Psychico, esta ubicada en Atenas, Grecia, con 960 metros cuadrados de área y fue terminada en el año 2011. El terreno total es de 1570 metros cuadrados y queda en una zona alta en comparación a las demas calles que estan alrededor de esta.
Podría considerarse una casa tranquila y privada…se necesitaba el jardín y la picina aislada de los edificios vecinos para mantener una privacidad de alto rango.
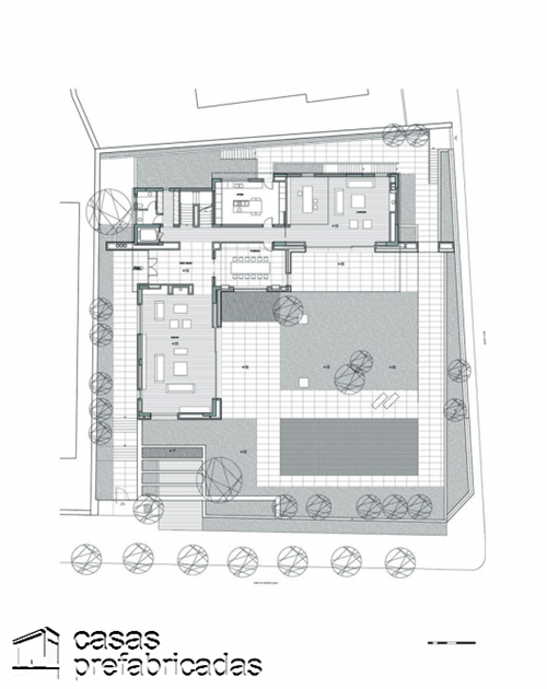
Cuenta con dos niveles – el primer piso es de forma L es en donde se han colocado las salas de estar con entradas grandes lo que también provoca una relación directa con el jardín.
Una característica de esta casa es que todas las zonas al aire libre y del jardín tienen revestimientos de mármol o están pintadas semejantemente.
En contraste, un volumen blanco lineal pronunciado, orientado hacia el este y que alberga las áreas de descanso, se cierne sobre el volumen de la planta baja, acentuando la horizontalidad predominante del edificio.
Todas las habitaciones tienen vistas hacia el este. Es una casa grande, bien organizada con jardines hermosos y en donde se nota de manera fuerte la privacidad en todo momento – es en un sitio poblado en donde la privacidad puede ser valorada mas que en otros lugares.




