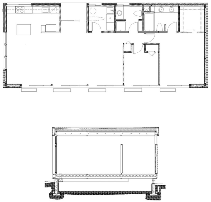
En su número veinte, la revista de arquitectura en madera maderadisegno publicó a una de las mejores promotoras de las viviendas prefabricadas, Rocío Romero. La arquitecta diseñó una vivienda que se puede vender por partes, en forma de kit.
El objetivo que se propuso es construir toda la caja externa e interna, por 30.000 dólares; digo caja a los muros externos, internos, piso, techo, y en este caso también incluye a los sanitarios y cocina. El modo de producción que propone es sin dudas innovador, puesto que vende la “mampostería” que se lleva en un camión, al lugar donde se erigirá la obra. En este lugar el propietario debe conseguirse un contratista que arme el kit, que construya las fundaciones además de las instalaciones eléctricas y sanitarias que no vienen con el kit. El costo de la obra entonces se compone del kit de la caja más las carpinterías más las instalaciones más la fundación.
En su página web se pueden ver los detalles de la vivienda y de sus variantes, ya que una de las posibilidades que ofrece es la de personalizar la vivienda. También se puede descargar una planilla con la cual presupuestar la vivienda completa, para tener la idea terminada de costo, ya que como mencioné lo que ella vende es únicamente la caja.
Ahora veamos la vivienda, a continuación la galería de imágenes del modelo LV en varias de sus instalaciones. Veremos como se define con la fachada de chapa ondulada o cómo se cambia esta por un delicado siding, más algunas variantes de terminaciones en el interior.






