«Definitivamente no es una casa prefabricada típica de un catálogo», escribieron los arquitectos. «Intentamos desarrollar una residencia que satisfaga las necesidades de los usuarios modernos y a la vez mantenga una disposición funcional y un elegante exterior contemporáneo, adecuadamente integrado en su paisaje».
SoNo Arhitekti demuestra que las casas prefabricadas son tan hermosas y eficientes como las viviendas construidas tradicionalmente. La Casa PS, una casa moderna en Eslovenia construida con madera y llena de luz natural. La hermosa vivienda de dos pisos cuenta con un diseño curvo y un plano abierto que desafía la construcción rectangular, comúnmente asociada con la construcción prefabricada.


Esta casa diseñada por el estudio SoNo Arhitekti, de 230 metros cuadrados, fue terminada en 2015 y cuenta con una audaz y curvilínea fachada que contrasta una base blanca y austera con un segundo nivel revestido tanto en superficies pintadas de negro como en diagonales de madera de alerce sin pintar.

La planta baja consta de tres volúmenes ligeramente curvos ensamblados en una forma de Y.
Grandes ventanales vierten luz natural en el interior de madera contemporáneo que cuenta con una cocina, sala de estar y comedor en planta baja.





La decoración minimalista es moderna y hace uso importante de la madera como elemento diferenciador, contrastando paredes y muebles en color blanco liso.



Veamos más fotos de su fachada y a continuación los planos de esta residencia:


Plano de la planta baja:

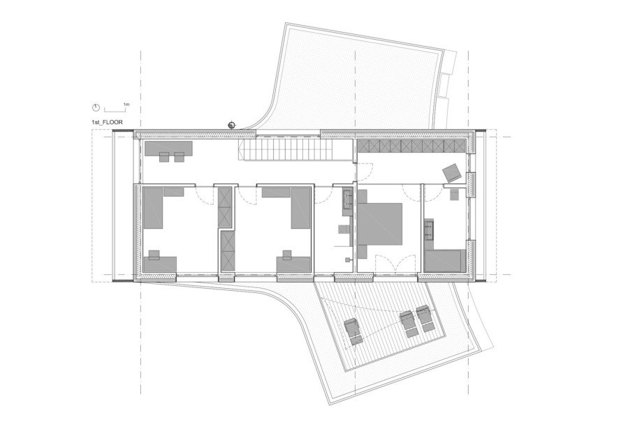
Plano del primer piso:
