En este día les traemos una pequeña y hermosa vivienda que puede ampliarse fácilmente, tanto en su parte exterior como también interior, gracias a la utilización de paneles de madera prefabricados. Además de ello, también analizaremos y les mostraremos cuatro tipo de planos de planta para que así puedan comprender cuales son las opciones para ampliar dicha vivienda.
La fachada luce una estructura moderna monovolumen, que cuenta con grandes ventanales de marcos de madera natural, además de eso, la terminación del techo y y las pareces asemejan y nos recuerdan al arte japones del origami.



Un punto muy a favor de esta casa prefabricada es que puede personalizarse de acuerdo al gusto y las necesidades de los clientes inclusive después de haber adquirido la propiedad, y esto, es gracias a la fácil colocación de paneles de vidrio prefabricados que pueden colocarse tanto en la parte interior, como en la parte exterior de la vivienda. Los paneles son de 1.5 metros de ancho y ayudan a dividir el interior, crear nuevas habitaciones en el interior o bien, cubrir la fachada para una mayor privacidad.


Diferentes posibilidades de ampliación, Planos!

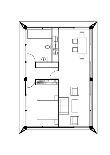
En este primer caso, la vivienda es un monovolumen donde están incluidos una pequeña sala, el comedor y el dormitorio dentro de un espacio cuadrado, detrás de los muebles de la cocina encontraremos un amplio cuarto de baño.

Si lo que estamos buscando es privacidad, este segundo modelo de casa te puede interesar ya que se han separado mediante los ya mencionados paneles de madera prefabricados la zona privada y social, haciendo que de esta forma la cocina y la sala comedor queden ubicadas en una zona área y el dormitorio finalmente quede separado.

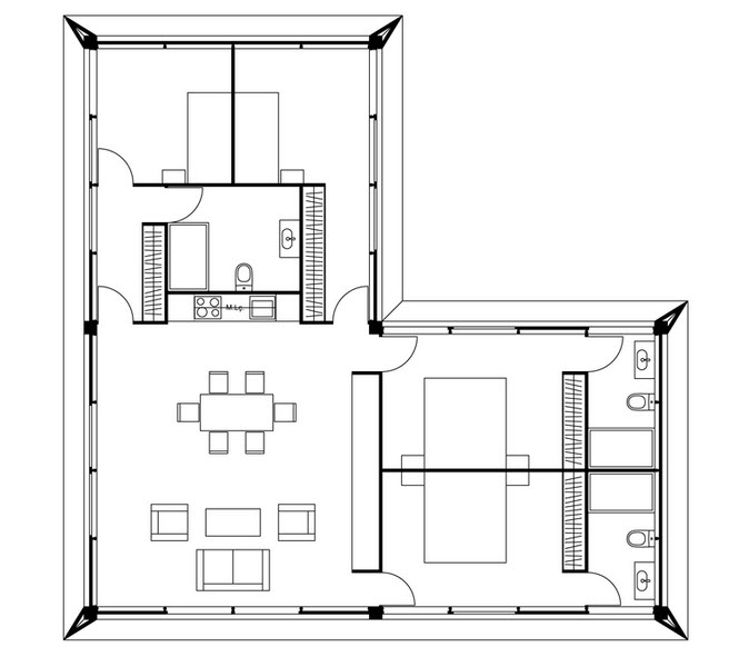
Construida en 151 metros cuadrados, esta ampliación es perfecta por si la familia crece, ya que la familia tiene que crecer también a consecuencia. Si además de ello, se dispone de más espacio, se puede seguir construyendo horizontalmente. En este modelo encontraremos cuatro habitaciones y una zona social en solo tres módulos cuadrados.

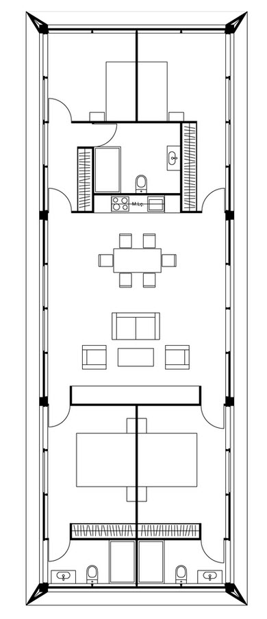
Si lo que tenemos es un terreno largo, esta es una importante y moderna zonificación para tu vivienda. En este último plano divisaremos cuatro dormitorios en los extremos y en la parte central la zona social.
Diseño interior con posibilidad de crear nuevas habitaciones gracias a paneles de madera



Para más información y nuevos artículos y lanzamientos, recientemente lanzado, el portal MundoFachadas.com implementa una búsqueda avanzada que permite encontrar fachadas (de casas, edificios, chalets, cabañas, etc.) y filtrarlos de acuerdo a preferencias concretas (estilo, tamaño de la vivienda y terreno, número de plantas, tipos de materiales en la fachada, etc). Incluso es posible escoger si se requieren fotos de interiores y planos.