Hypernuit es el nombre de unas oficinas ubicadas en Paris Francia , Son unas oficinas frescas y luminosas en donde el trabajo no estresa, esto es debido al color gris claro de todas las secciones como las paredes , la muebleria , e incluso del piso , estas oficinas son pequeñas e incluso por momentos podria llegar a necesitarse un poco de espacio extra sin embargo son capaces de ubicar dentro de un ambiente perfecto a los empleados que laboran , de manera comoda , limpia , sobre mesas despejadas , en un ambiente que les recuerda hacer los trabajos con paciencia y orden mas que el del ver constantemente al reloj para retirarse de la oficina.
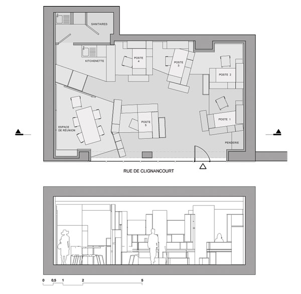
Las dimensiones de estas oficinas miden 65 metros cuadrados , un trabajo desarrollado y completado por h2o architectes quienes tambien se encargaron de la decoracion de los interiores y la muebleria , basandose en un diseño que explota el ambiente geometrico y de uniformidad.
La muebleria incluye exactamente cinco mesas iguales y es precisamente uno de los principales detalles que generan uniformidad en el ambiente , en donde el trabajo en equipo es fomentado .
Hypernuit es una oficina de agencia de empleos y desearon un diseño y decoracion de oficina que hiciera sentir a los empleados en un ambiente digitalizado y uniforme , sin llamar la atencion con detalles fuera de lo comun , pero que sin embargo tuviese caracter, esta empresa tiene animos de innovacion constante.
La tecnica utilizada por los diseñadores y decoradores de interiores fue la de unificacion de bloques para evitar la dispersion de la muebleria y optimizar espacios mientras aun existiera la posibilidad de desplazarse en sus interiores.
Agradecemos a Freshome.com





















