• Skip to primary navigation
  • Skip to main content
  • Skip to primary sidebar
  • Prefabricadas
  • Modulares
  • Modernas
  • Fachadas
  • Construccion
  • Más…
    • Casas Contenedores
    • Casas Masso
    • Casas Mi Antojo
    • Casas Modulares
    • Casas Móviles
    • Construccion de Casas
    • Constructoras
    • Decoracion de Interiores
    • Fachadas de casas
    • Fotos de casas
    • Planos de casas
    • Videos de Casas Prefabricadas

Casas prefabricadas

Fotos, diseños y modelos de casas prefabricadas

  • Contacto

Casa de lujo de seis plantas con una enorme zona de ocio familiar

Desde una empinada ladera de 1.400 m2, que desciende hasta la famosa secuencia de playas blancas de Clifton, esta apilada y moderna casa sudafricana parece flotar sobre su piscina infinita.

Los arquitectos de SAOTA diseñaron esta casa de 943 metros cuadrados en Ciudad del Cabo de forma que la zona de estar principal y la terraza de la piscina estuvieran situadas en el nivel superior de doble volumen; seis generosos dormitorios y una multitud de impresionantes espacios de ocio ocupan las cuatro plantas inferiores.

Un límite acristalado une el interior con el exterior. Las paredes de cristal conectan el espacio interior con un enorme jardín trasero que se abre directamente al Parque Nacional de Table Mountain, y con la piscina que fluye directamente hacia el mar en la parte delantera.

Se entra por Nettleton Road, la calle más codiciada de Sudáfrica. Desde la calle, la primera impresión de los cuatro pisos inferiores está cuidadosamente compuesta, y sólo se vislumbran los dos lujosos niveles superiores. El volumen que flota sobre la piscina tiene un suelo de cristal que permite contemplar la superficie inmóvil del agua. El patio de la piscina alberga un salón exterior que ofrece la calidez de una hoguera encendida.

Este volumen es la principal zona habitable de la casa e incluye salas familiares, una cocina, un bar, varios comedores, un salón de invierno, un estudio y un estudio de arte. El amplio salón de lujo de doble altura se convierte en un espacio exterior cuando se recogen dos paredes enteras de cristal. El suelo del salón combina con las baldosas claras de la terraza de la piscina, lo que crea una transición perfecta entre el interior y el exterior. Los sofás son ligeros para armonizar con la decoración neutra. Una escultural lámpara de pie se arquea sobre la disposición en U de los sofás. Los interiores fueron creados por ARRCC junto con OKHA.

Los asientos del salón miran hacia el impresionante horizonte oceánico y hacia un jardín privado cubierto de exuberante césped. Unos anchos escalones de hormigón cruzan el césped. Justo al lado del salón principal hay un tranquilo despacho. La planta superior alberga una bodega.

Una larga mesa de comedor de madera tiene capacidad para doce comensales. El comedor linda con una cocina abierta situada al final del salón. En el exterior, las tumbonas ofrecen un lugar de relax en el patio, con un juego de comedor al aire libre situado justo fuera de la vista a la izquierda debajo de una pérgola.

Dos sillas negras modernas de mediados de siglo miran hacia el jardín trasero. Una alfombra neutra calienta el suelo del salón. Una serie de libros cubren la superficie de una moderna mesa de centro.

La casa alberga una impresionante colección de arte sudafricano, como estas máscaras montadas sobre la cocina. La pared de la galería está pintada de gris oscuro para añadir dramatismo.

Tres taburetes de cocina blancos se sientan en una larga encimera blanca, que envuelve los extremos de la isla de cocina.

Una discreta lámpara colgante lineal gris cuelga de las vigas altas, cerca de la mesa del comedor. En el centro de la mesa se enroscan cuernos de animales, otro recordatorio de que esta nítida morada contemporánea tiene raíces sudafricanas.

Un salón más pequeño mira al mar a través de una ventana panorámica. Un grupo de jarrones de cristal verde añade un toque de color verde a la paleta náutica.

Listones de madera envuelven la altísima pared y el vasto techo de una enorme sala de juegos. El billar, el ping pong y el futbolín están preparados para la diversión. Los coloridos toques decorativos crean una atmósfera estimulante.

Al fondo, la sala de juegos da directamente a una sala de cine. La película «Blowfish» de Porky Hefer está suspendida bajo un altillo. El volumen de entretenimiento también cuenta con un spa de belleza y una sauna.

El amplio entresuelo termina en una sala de televisión.

La pasarela sirve también de elegante galería de arte moderno.

Una lámpara colgante en forma de nube arrugada flota en la sala de televisión, sobre un sofá de piel en forma de L de color topo. Dos sillas de acento en negro brillante miran hacia la frondosa ventana. El verde y el amarillo colorean la alfombra del suelo y el entorno monocromo. En muchas de las habitaciones hay techos de madera, hechos con las tablas deterioradas que cubrían los techos de hormigón en otras partes de la casa.

La escalera es casi indistinguible entre la mística decoración de la fachada de entrada, con sus llamativas piezas de arte y sus misteriosos efectos de iluminación. Una escultura de Paul Edmunds colorea una de las paredes del espacio, en su mayor parte de hormigón. Las escaleras apoyadas en una de las paredes aluden al ascenso por la escalinata.

Una balaustrada de cristal flanquea el primer nivel de escalones, permitiendo que el arte escultórico de la pared brille a través de su transparencia y que un tapiz de Paul Blomkamp se refleje en su superficie. Aquí encontrará más diseños de escaleras.

Las balaustradas de metal envejecido visten el resto de la escalera de hormigón con una pátina rojiza.

Las distintas zonas de uso se definen mediante un suelo de dos niveles en el interior de este dormitorio de lujo, donde la cama se eleva a la categoría de primera. El resto de la suite incluye una generosa zona de estar y un cuarto de baño de planta abierta. Tres de los seis dormitorios de esta casa se comunican entre sí como una suite familiar.

La fachada de entrada.

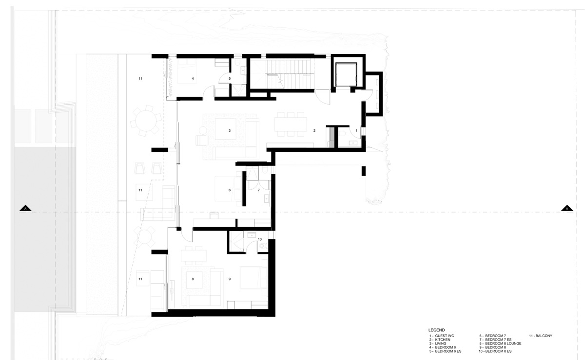
Plano de planta.

La casa tiene un garaje anexo para cuatro coches. En esta planta también hay una habitación y un baño para el personal.

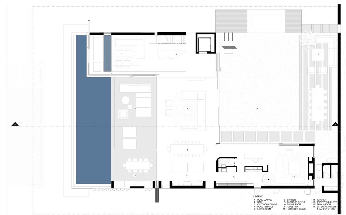
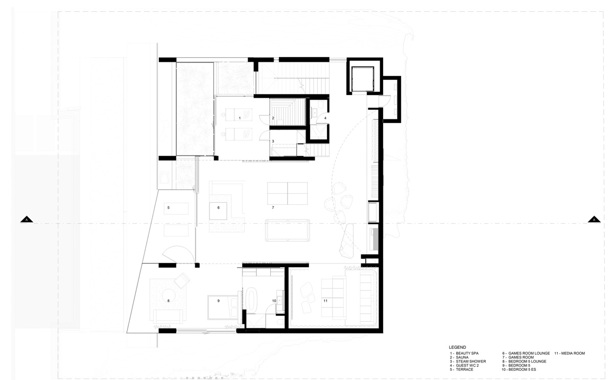
Plano de planta que muestra el spa de belleza y la sala de sauna situados alrededor de la zona de ocio familiar de doble altura.

Aquí vemos la situación del espacio dedicado a la oficina en casa, y el desván del vino.

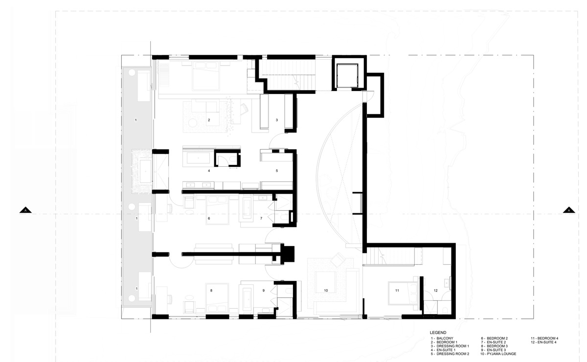
Plano que ilustra el impresionante tamaño de la suite principal.

Zona de estar principal.

Primary Sidebar

  • Facebook
  • Pinterest
  • RSS

Un Paraíso Frente al Mar

Un Rascacielos que Redefine el Skyline de Nueva York

Apartamento de Gisele Bundchen y Tom Brady en Nueva York

Modelos de Casas Prefabricadas y Modulares · LasCasasPrefabricadas.com · Copyright © 2026