• Skip to primary navigation
  • Skip to main content
  • Skip to primary sidebar
  • Prefabricadas
  • Modulares
  • Modernas
  • Fachadas
  • Construccion
  • Más…
    • Casas Contenedores
    • Casas Masso
    • Casas Mi Antojo
    • Casas Modulares
    • Casas Móviles
    • Construccion de Casas
    • Constructoras
    • Decoracion de Interiores
    • Fachadas de casas
    • Fotos de casas
    • Planos de casas
    • Videos de Casas Prefabricadas

Casas prefabricadas

Fotos, diseños y modelos de casas prefabricadas

  • Contacto

Casa de vacaciones junto al Mar Mediterráneo

Casa Santa Teresa es una casa de vacaciones por excelencia junto al azul mar Mediterráneo, que se agita y espumea a pocos metros de distancia a lo largo de la costa de Ajaccio, en Francia. El eco de la casa de los años 50 que una vez estuvo aquí es reimaginado por Amelia Tavella Architectes como un moderno edificio blanco y luminoso de 400 metros cuadrados.

La proximidad a la naturaleza, la playa, las rocas y el mar exigía una interacción perfecta entre los espacios interiores y exteriores. «Quería que la belleza fluyera, que fuera una invitación al horizonte, a la imaginación», recuerda el arquitecto. Se instalaron grandes puertas pivotantes para dejar entrar las vistas, y la ausencia de tabiques permitió que la belleza fluyera sin límites.

La casa moderna se extrae de la ciudad, se aleja del ruido y el caos en favor del silencio y la belleza de la naturaleza: «Cuando construyo, no venzo. No hay traición. Procedo por inclusión. La naturaleza invade mis proyectos. No es un obstáculo ni un estorbo, es mi anfitriona a la que celebro. Me adapto a los árboles, a la luz, al relieve. Es mi manera de equilibrar un gesto moderno, la arquitectura, con la tradición de un acantilado, de un barranco. Hay algo ancestral en la naturaleza. A menudo me conmueve».

Los espacios interiores y exteriores de la casa de vacaciones están equilibrados para promover un flujo de vida sano y alegre. Los toldos y contraventanas de ratán tamizan la intensa luz del sol para crear zonas de confort a la sombra.

La arquitectura de la casa es escalonada, de modo que los grandes balcones de cada nivel se extienden bajo los rayos del sol, ofreciendo una conexión total con la naturaleza mientras los propietarios contemplan el océano claro y danzante.

La piscina exterior ocupa un lugar privilegiado, justo delante de la playa. Uno puede imaginarse nadando en el océano sin renunciar a la comodidad de su hogar. Sin embargo, si el majestuoso mar llama, unos escalones de piedra crean un camino que baja desde la terraza de la piscina y desembarca directamente en la playa de arena.

La piscina de hormigón está rodeada de muebles rústicos. Las plantas tropicales florecen a lo largo de los bordes.

Sillas y mesas de exterior conforman las zonas para comer al aire libre en el patio de la piscina y en el balcón del primer piso.

Un cobertizo de bambú da sombra a la mesa de comedor exterior del porche de la planta baja, protegiéndola del sol del mediodía.

El refugio también sirve de bar al aire libre.

Las palmeras se mecen en los bordes.

Caminos de piedra conducen a las zonas de estar al aire libre.

Plantas y flores se reflejan en las frescas aguas de la piscina.

Amelia Tavella explica: «Me apasiona crear, inventar a partir de una historia ya escrita».

«Cada vez, es una apuesta: inscribir el edificio en el espacio original sin impactar nada, moverlo o maltratarlo. Es una ampliación, no una amputación».

La casa de vacaciones está abrazada por cielos cálidos. Desayunar en el balcón del primer piso parece la forma perfecta de empezar el día.

Unas puertas pivotantes llevan el mundo exterior al salón de la primera planta.

Un sofá neutro y unas tumbonas de madera mantienen la paleta de colores de la sala de estar tranquila y sencilla, y complementan las puertas con marcos de madera que aportan un factor sorpresa a la habitación.

El mobiliario y la decoración sencillos permiten que las impresionantes vistas de la belleza de la naturaleza sean el centro de atención.

Una lámpara de mesa de ratán emite un resplandor acogedor incluso cuando las noches son demasiado cálidas para encender un fuego en la chimenea elevada.

La zona del balcón y la sala de estar interior funcionan como un solo volumen conectado, con un paso fluido a través de las amplias puertas abiertas.

Las vívidas puestas de sol son un fascinante espectáculo nocturno. «Es la quintaesencia de la casa de vacaciones, la que persigue mis recuerdos de felices tardes de infancia, cuando la noche abraza al día y la belleza es una celebración», dice Amelia Tavella.

La singular lámpara de sobremesa proporciona una luz suave similar a la de las velas en el salón, mientras que las lámparas colgantes brillan con más intensidad en el rincón del comedor situado detrás.

De día, las paredes blancas y nítidas dejan pasar la luz natural al interior de la habitación.

Los grandes arcos marcan las transiciones entre estancias sin establecer límites sólidos. Las alcobas secretas conducen a las habitaciones superiores.

Los alegres cojines dispersos dan vida al comedor y combinan con las coloridas lámparas colgantes del comedor.

El asiento banqueta se compone de un volumen en forma de L de hormigón blanco que sobresale directamente de las paredes.

En el interior de otro arco se ha encajado un espacio de trabajo dedicado al hogar.

Las estanterías integradas se elevan en la pared junto al escritorio y la silla de madera.

Las tumbonas de madera se extienden por el balcón de arriba, fuera del dormitorio principal.

Las estanterías de hormigón están decoradas con arte mediterráneo y baratijas.

Un dosel cubre la cama.

Una silla de mimbre descansa justo dentro de las puertas del balcón, recogida cuidadosamente por el marco pivotante.

Vistas de vegetación se asoman.

Las contraventanas a rayas filtran la intensa luz del sol.

Unos escalones conectan el balcón con el patio de la piscina.

Barandillas de cuerda zigzaguean las vistas al mar.

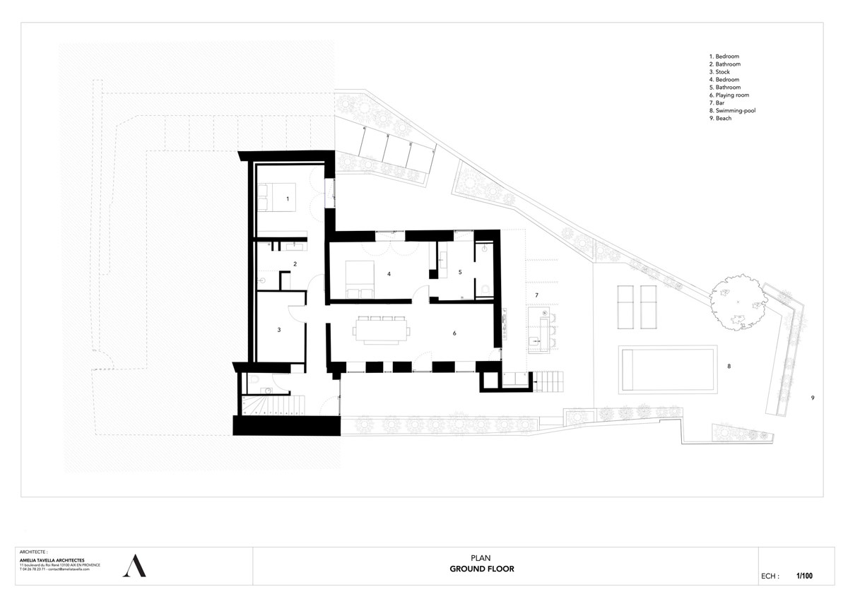
Planta baja, con bordes ajardinados, piscina, amplio patio y zona de bar al aire libre.

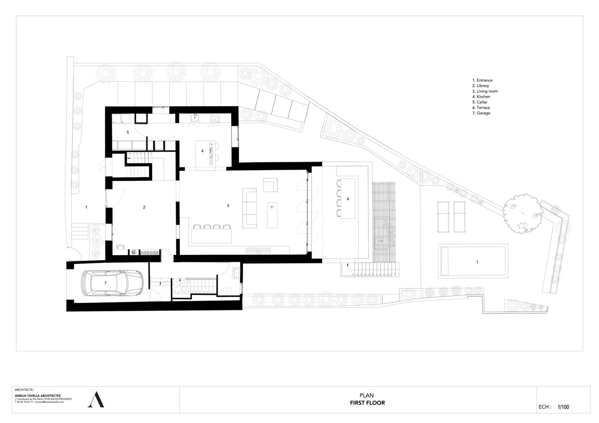
Plano de la primera planta, con banquetas a juego para comer al aire libre y en el interior. Podemos ver en el plano que la banqueta del comedor interior forma en realidad el hogar de hormigón de la chimenea del salón.

Plano de la segunda planta, que ilustra el dormitorio principal, con un generoso cuarto de baño y un balcón privado.

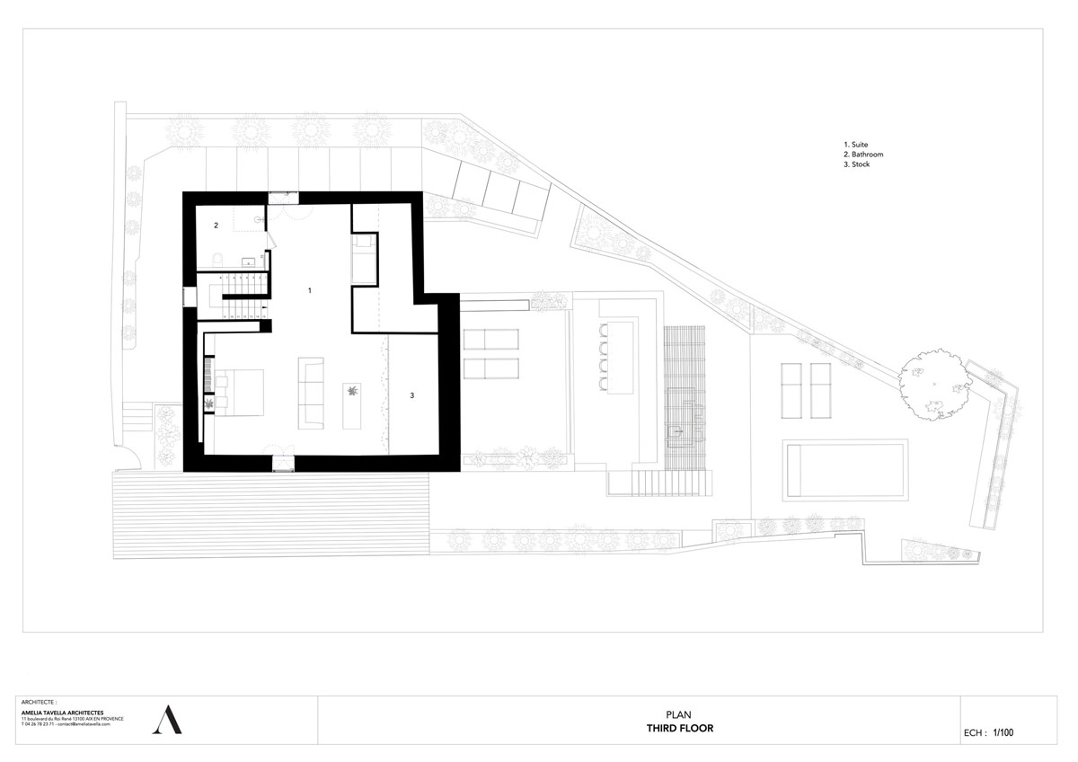
Plano de la tercera planta, con una suite en el alero.

Plano de sección.

Este artículo ha sido publicado gracias a Home-Designing: Fuente del articulo

Primary Sidebar

  • Facebook
  • Pinterest
  • RSS

Un Paraíso Frente al Mar

Un Rascacielos que Redefine el Skyline de Nueva York

Apartamento de Gisele Bundchen y Tom Brady en Nueva York

Modelos de Casas Prefabricadas y Modulares · LasCasasPrefabricadas.com · Copyright © 2026