• Skip to primary navigation
  • Skip to main content
  • Skip to primary sidebar
  • Prefabricadas
  • Modulares
  • Modernas
  • Fachadas
  • Construccion
  • Más…
    • Casas Contenedores
    • Casas Masso
    • Casas Mi Antojo
    • Casas Modulares
    • Casas Móviles
    • Construccion de Casas
    • Constructoras
    • Decoracion de Interiores
    • Fachadas de casas
    • Fotos de casas
    • Planos de casas
    • Videos de Casas Prefabricadas

Casas prefabricadas

Fotos, diseños y modelos de casas prefabricadas

  • Contacto

Lujoso uso de la Madera: Enorme Casa muy Luminosa en Plena Ciudad

Situada en una zona residencial de São Paulo, Brasil, el concepto de diseño de esta lujosa casa de 1.280 metros cuadrados empezó con la piscina. Diseñado por Matheus Farah + Manoel Maia Arquitetura, el diseño de esta lujosa casa gira en torno a una enorme piscina que se puede ver desde la mayoría de las habitaciones de la casa, donde se confiere un estilo de vida fácil de interior a exterior.

La arquitectura de la Casa Ibsen se creó para facilitar los momentos compartidos y la vida en común a través de grandes paredes correderas, al tiempo que se proporciona intimidad. El espacio más privado de la casa se encuentra en el subsuelo, donde la iluminación especial de neón y los tratamientos acústicos dan forma a la Redroom, el escondite definitivo para fiestas.

Paredes retráctiles rompen el gran espacio de estar de planta abierta, conectando completamente el lujoso salón con la amplia terraza de la piscina y los jardines.

Un volumen de madera se suspende sobre la zona de la cocina comedor. Su fachada de madera maciza se retira con dos juegos de persianas plegables para revelar un moderno espacio de oficina en casa. Para mantener el aspecto de bloque de madera suspendido, el techo del despacho también está completamente revestido de madera. Las estanterías dibujan el color en la pared del fondo.

Al anochecer, las vastas paredes verticales del jardín se iluminan para rodear la casa abierta con una exuberante vegetación incluso después de oscurecer. Las hojas tropicales adquieren una textura y una forma espectaculares para realzar los bordes de la arquitectura moderna y lineal.

La distribución abierta es un plan coordinado de color, materiales y funcionalidad conectada que mantiene una estrecha relación con el entorno exterior.

La distribución está prácticamente libre de paredes fijas. Los jardines verticales y los grandes paneles correderos dividen los espacios vitales, creando tranquilas zonas híbridas que provocan encuentros cruzados.

En un extremo del lujoso salón, una sala de televisión está amueblada con una enorme librería que hace estallar de color el esquema decorativo en tonos grises, blancos y madera. Las piezas de acento en azul intenso interrumpen aún más la paleta neutra, mediante cojines y sillas de diseño.

Una gran alfombra separa el cómodo salón del resto de la zona diáfana, formando una acogedora isla de colores claros y texturas suaves bajo los pies.

Un comedor formal se extiende junto a la larga isla de la cocina, al otro lado de la estancia.

La parte inferior del volumen del despacho suspendido revestido de madera se refleja en la encimera de madera maciza de la isla de cocina. Un zócalo de hormigón crea un fresco contraste.

Un segundo salón está situado en la terraza cubierta, junto a la piscina.

Una obra de arte moderno disfruta de la luz del sol.

La disposición exterior de bloques imponentes se ve interrumpida por más jardines verticales que funden armoniosamente los volúmenes con el entorno tropical.

La arquitectura y la plantación garantizan una discreción íntima.

La tapicería roja de los muebles de exterior marca el cambio de zona respecto al fresco interior acentuado en azul.

Una cubierta en la azotea se suma a las zonas de ocio de la casa.

Al otro lado del volumen social, unas puertas sobre raíles longitudinales se abren para conectar con un comedor exterior.

Pasando a la planta superior, vemos el despacho suspendido desde el interior. Cuando está cerrada, las contraventanas de lamas de madera crean un capullo privado.

Una vez abierta, la moderna oficina cobra vida gracias a la luz natural.

Un escritorio empotrado hecho a medida, armarios y estanterías de pared ocupan todo el estrecho espacio de trabajo.

Un pequeño salón interior y una cocina comunican con la terraza de la azotea.

Las zonas sociales de la azotea ofrecen una vista privilegiada del barrio. Las habitaciones de invitados y otras instalaciones privadas dan a la piscina a través de grandes ventanales.

Un comedor exterior, sofás de exterior y un gran jacuzzi se sitúan sobre una tarima de madera, mientras que un conjunto de tumbonas se reclina sobre el césped.

En el subsuelo de la casa no sólo hay una sala de fitness y un amplio garaje, sino que también se puede acceder a la Redroom oculta. Una atmosférica iluminación roja y tratamientos acústicos especiales facilitan un lugar ideal para las fiestas privadas de los propietarios.

Luces de neón rojas adornan el techo y las paredes de la sala de fiestas, creando un aspecto de discoteca deslumbrante. Una barra iluminada destaca a lo largo del espacio, creando siluetas retroiluminadas de los modernos taburetes de bar. Se ha colocado una gran pantalla de TV para deportes y eventos.

Las contraventanas de lamas de madera que restablecen la intimidad atraviesan los amplios volúmenes de lados abiertos y provocan atractivos juegos de luz en los interiores.

Los jardines verticales y los altos árboles tropicales dotan a las habitaciones de paredes acristaladas de una privacidad llena de luz solar.

Escaleras exteriores comunican las terrazas.

La planta baja se dispone en forma de L alrededor del borde de la piscina rectangular, situando la suite principal perpendicular al salón principal.

Dos elegantes tumbonas y una mesita conforman un lugar perfecto para el café matutino en la terraza del dormitorio.

La cubierta suspendida se crea gracias a la estructura de soporte de las amplias contraventanas de lamas de madera del dormitorio.

El elegante mármol blanco decora el lujoso interior del cuarto de baño, en el que los accesorios negros y el inodoro negro aportan un toque de oscuridad. Una claraboya cuadrada abre el techo a la luz natural.

Revestido de madera en tonos miel, el exterior de la casa contemporánea contrasta cálidamente con el cielo azul despejado.

Dibujo en sección.

Planta con salón social y terrazas, además del dormitorio principal con dos vestidores y baño privado.

Plano de la primera planta.

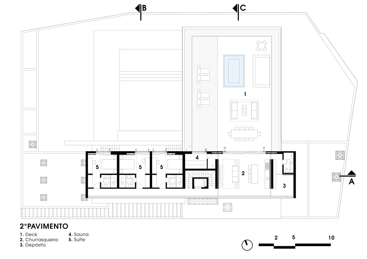
Plano de la segunda planta con habitaciones de invitados.

Planta subterránea con zona de fiestas Redroom y área técnica, generador y lavandería.

Azotea con jacuzzi.

Este artículo ha sido publicado gracias a Home-Designing: Fuente del articulo

Primary Sidebar

  • Facebook
  • Pinterest
  • RSS

Un Paraíso Frente al Mar

Un Rascacielos que Redefine el Skyline de Nueva York

Apartamento de Gisele Bundchen y Tom Brady en Nueva York

Modelos de Casas Prefabricadas y Modulares · LasCasasPrefabricadas.com · Copyright © 2026