Un pequeño homenaje a Peter Chapman un músico famoso por tocar el piano, posee una casa arruinada por ser la casa que utilizaba cuando era pequeño y fue testigo de sus primeros intentos musicales.
brg3s Architects tuvo la visión de renovar esta vivienda pero lo hizo de una gran manera al utilizar materiales de última generación, logrando al final una obra magnífica para nada semejante a lo que era antes pero conservando las cualidades originales .
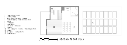
La casa mide 2,100 pies cuadrados , conozcamosla a fondo.
Publicación anterior
Bellas fachadas que incorporan hornos y cocinas coloniales en sus exteriores















