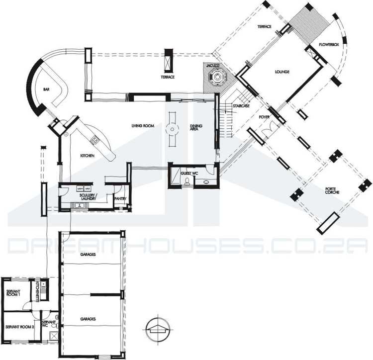
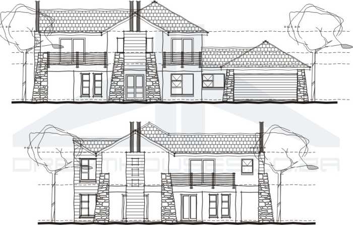
Dream Houses es una empresa de Sud Africa que ofrece planos de casas en base a distintos estilos de arquitectura. También ofrecen herramientas y servicios para constructores. Estos son planos de casas modernas, modelo 1 y 2.
Planos de casas Modelo 1,2 y 4
Para más información puedes verlas en el sitio: http://www.dreamhouses.co.za/modern.htm











